当前位置:首页 > 智慧商学院 > 寻方案 > 正文

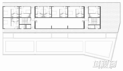
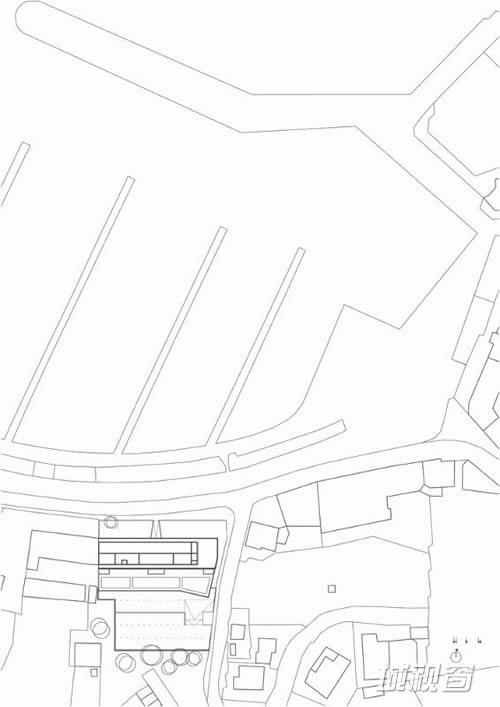
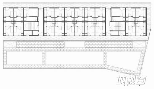
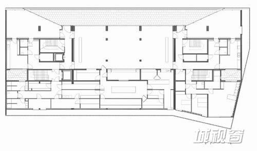
海洋天文台国际住宿中心建筑设计

发布时间: 2014-08-27 15:10:34 编辑:family 来源: 城视窗 浏览次数:

关键字:海洋,天文台,国际,住宿,中心,建筑设计
相关新闻 more>>

网友评论

(共 0条)查看全部
验  证  码: 只允许输入140个字
(网友评论仅供其表达个人看法,并不表明本站同意其观点或证实其描述。)
Art
友情链接
>>