当前位置:首页 > 头屏推荐区 > 重点推荐 > 正文

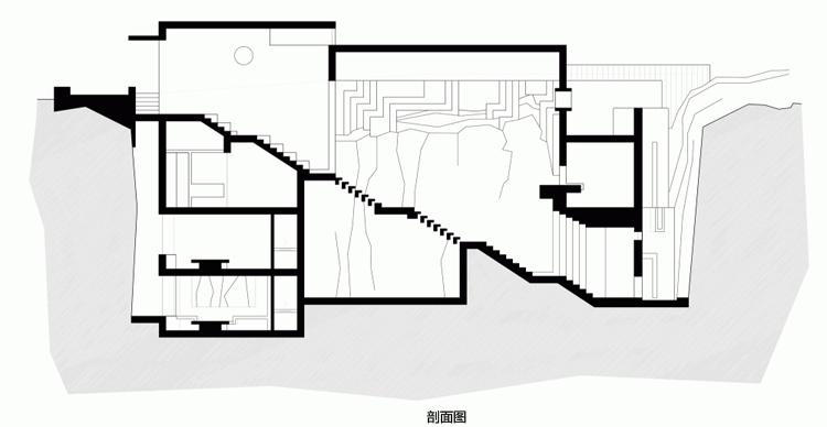
维罗妮卡海滩别墅(Veronica Beach House)

发布时间: 2014-04-09 14:36:36 编辑:佚名 来源: 中国建筑报道网 浏览次数:

Longhi Architects建筑事务所
Longhi Architects建筑事务所
 

关键字:维,罗,妮,卡,海滩,别墅,veronica,beach,house
相关新闻 more>>

网友评论

(共 0条)查看全部
验  证  码: 只允许输入140个字
(网友评论仅供其表达个人看法,并不表明本站同意其观点或证实其描述。)
Art
友情链接
>>